Jednoiposoban stan
Površina 42,59m2
S14(1. sprat) s79(6. sprat)
Dvosoban
Stan s1
Površina 42,59m2
S14(1. sprat) s79(6. sprat)

Površina 46,36m2
S9(1. sprat) s74(6. sprat)
Površina 46,66m2
s73(6. sprat)
Površina 48,37m2
Ss69(6. sprat)

Površina 49,75m2
s78(6. sprat)
Površina 50,32m2
S10(1. sprat)s75(6. sprat)
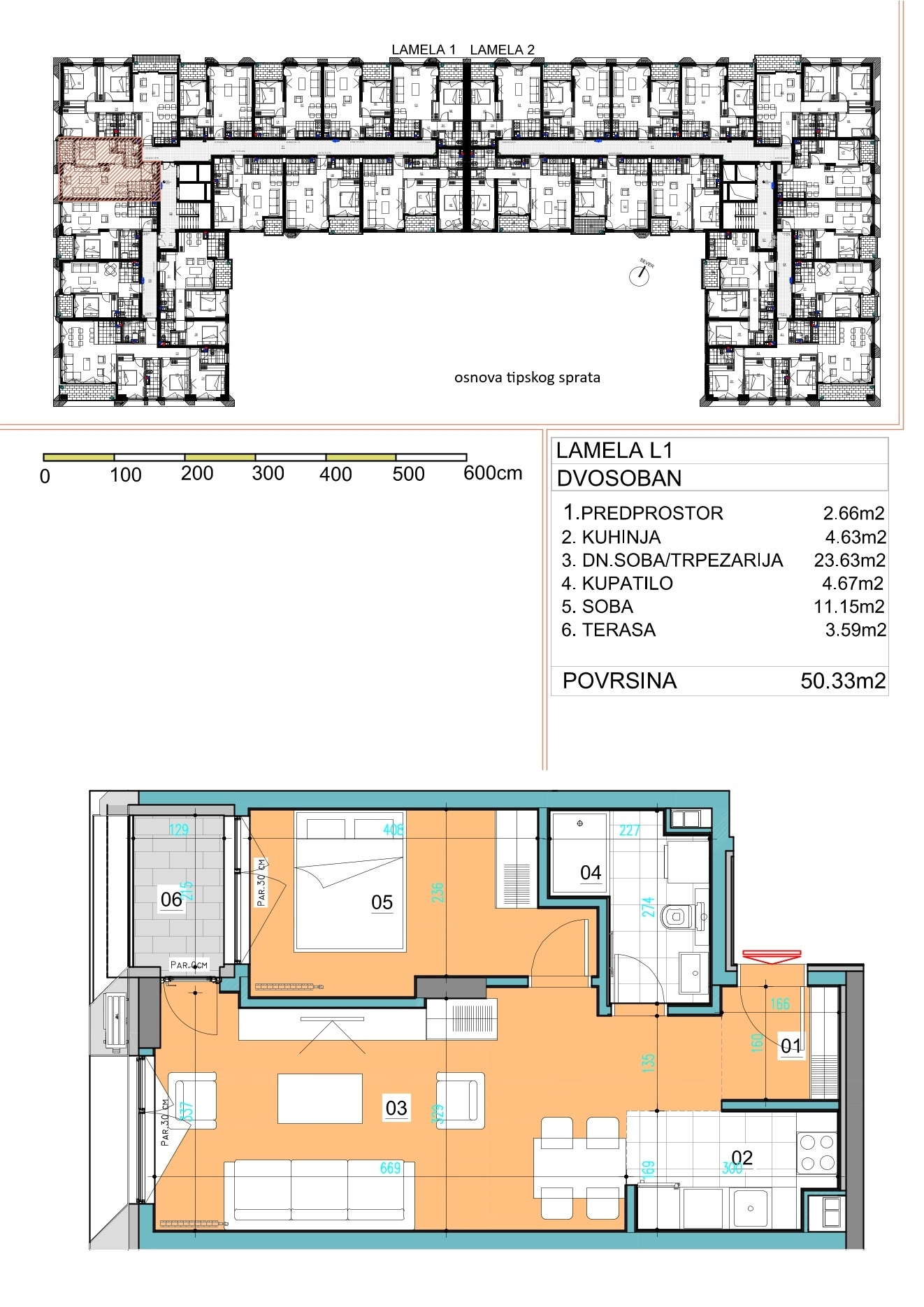
Površina 50,33m2
S12(1. sprat) s77(6. sprat)

Površina 51,01m2
S7(1. sprat) s72(6. sprat)
Površina 52,47m2
S5(1. sprat) s70(6. sprat)
Površina 68,25m2
s81(6. sprat)

Površina 71,1m2
s71(6. sprat)
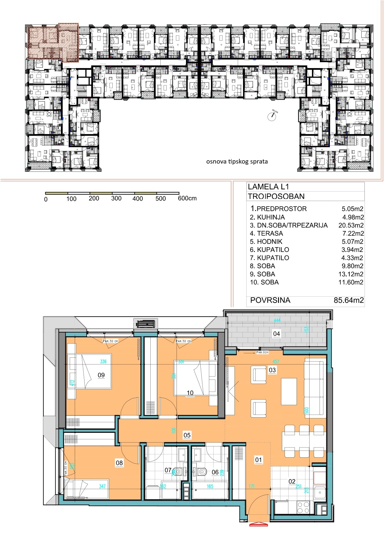
Površina 85,64m2
s76(6. sprat)
Površina 103.75m2
S15(1.sprat) S80(6. sprat)
Površina 129,29m2
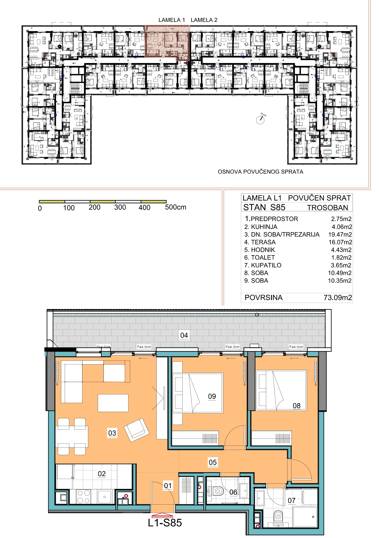
Stan S85
cena 255,815€+PDV
Površina 129,29m2
Stan S88
cena 426,657€+PDV