This website uses cookies to ensure that you have the best possible experience when visiting the website. View our privacy policy for more information about this. To accept the use of non-essential cookies, please click "I agree"
+381 64 00 00 917
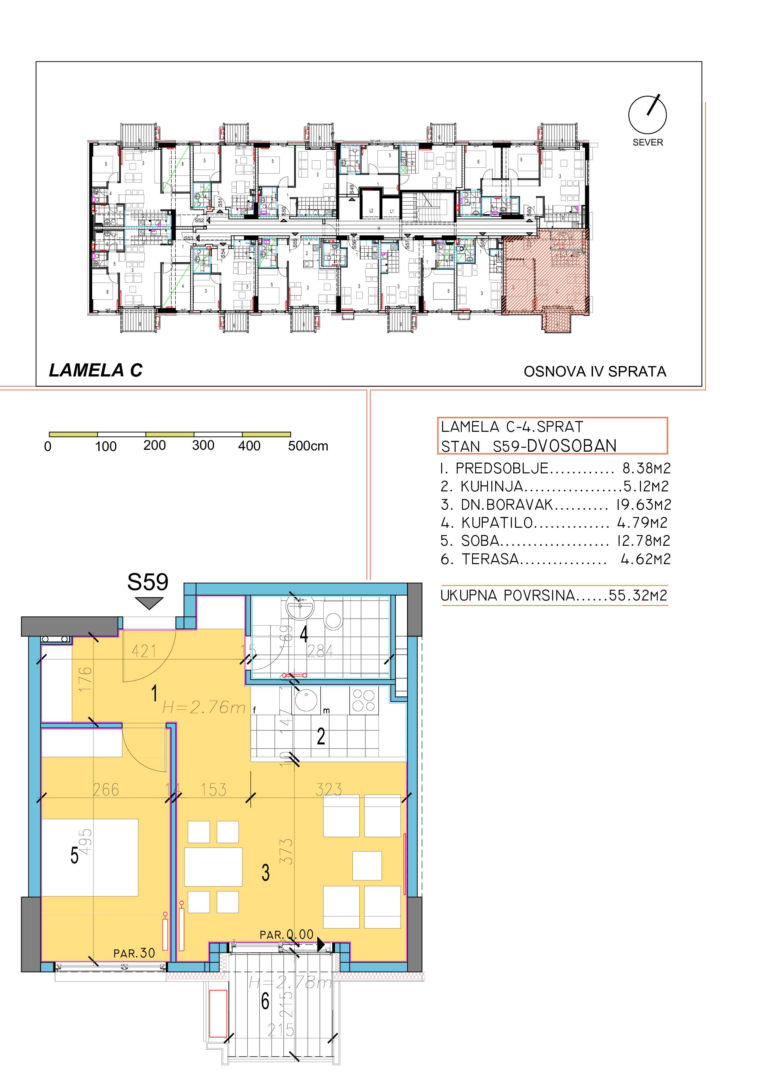
Rok završetka 1.5.2026.