Dvosoban stan
Površina 47,4m2
S1
cena 175,380€+PDV
Površina 47,4m2
S1
cena 175,380€+PDV
Površina 47,4m2
S2
cena 175,380€+PDV
OZNAKA STANA I DOSTUPNOST NA ODREĐENOM SPRATU SU OZNAČENI ISPOD POVRŠINE
Površina 42,59m2
S13(1.) S26(2.) S39(3.) S52(4.) s78 (6.)

Površina 46,36m2
S8(1.) S21(2.) S34(3.) S47(4.) S60(5.) s73 (6.)
Površina 46,66m2
S7(1.) S20(2.) S33(3.) S46(4.) S59(5.) s72 (6.)
Površina 48,37m2
S3(1.) S16(2.) S29(3.) S42(4.) S55(5.) s68 (6.)

Površina 49,75m2
S12(1.) S25(2.) S38(3.) S51(4.) S64(5.) s77 (6.)
Površina 50,32m2
S9(1.) S22(2.) S35(3.) S48(4.) S61(5.) s74 (6.)
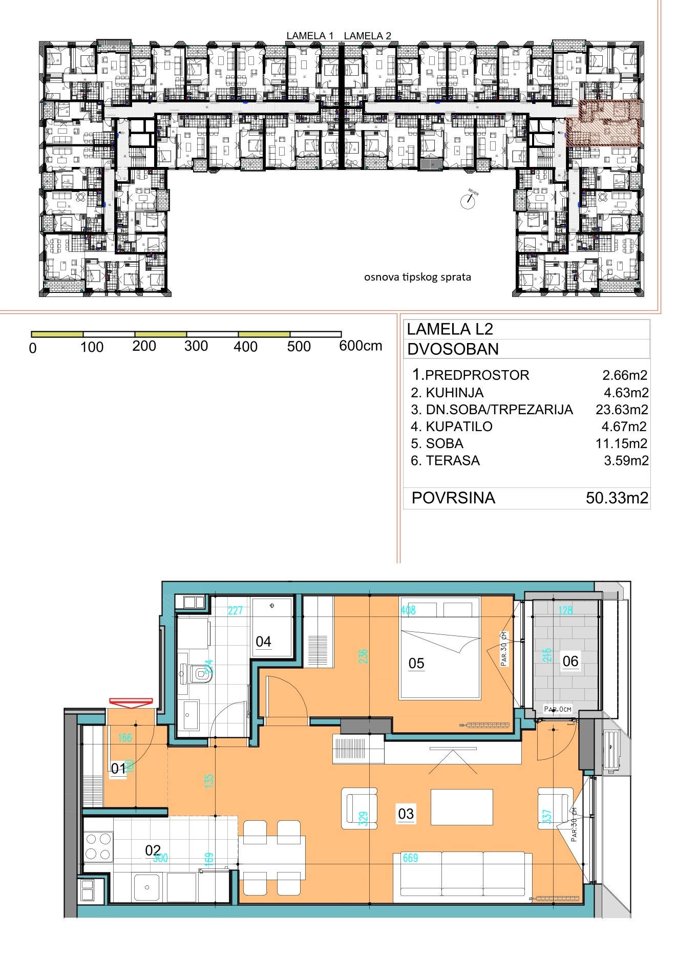
Površina 50,33m2
S11(1.) S24(2.) S37(3.) S50(4.) S63(5.) s76 (6.)

Površina 51,01m2
S6(1.) S19(2.) S32(3.) S45(4.) S58(5.) s71 (6.)
Površina 52,47m2
S4(1.) S17(2.) S30(3.) S43(4.) S56(5.) s69 (6.)
Površina 68,25m2
S15(1.) S28(2.) S41(3.) S54(4.) S67(5.) s80 (6.)

Površina 71,1m2
S5(1.) S18(2.) S31(3.) S44(4.) S57(5.) s70 (6.)
Površina 85,64m2
S10(1.) S23(2.) S36(3.) S49(4.) S62(5.) s75 (6.)
Površina 103.75m2
S14(1.) S27(2.) S40(3.) S53(4.) S66(5.) s79 (6.)
Površina 49,1m2
S81

Površina 52,79m2
S82
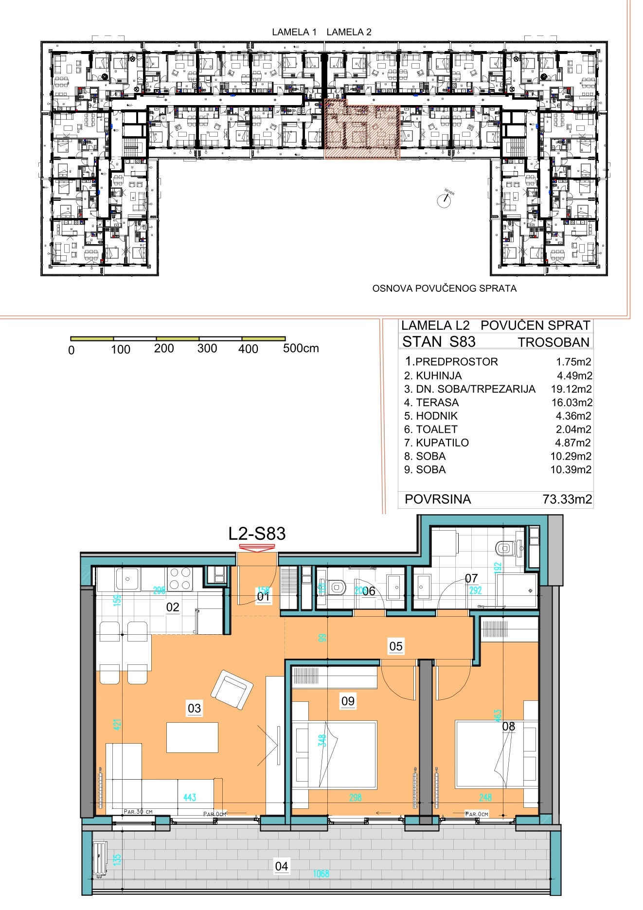
Površina 73,33m2
s83
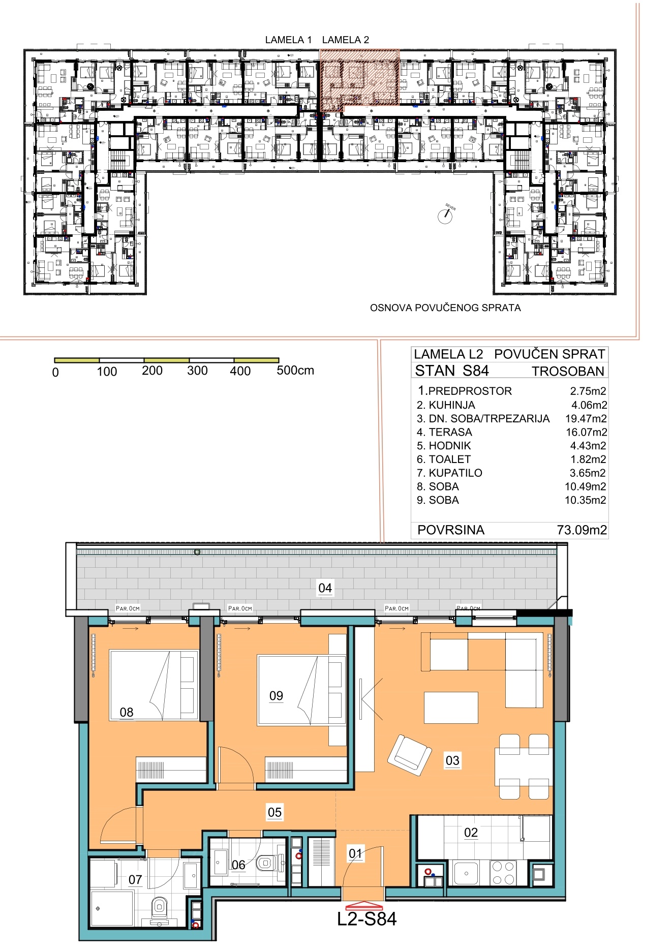
Površina 73,09m2
S84

Površina 52,32m2
S85
Površina 52,82m2
s86
Površina 129,29m2
S87

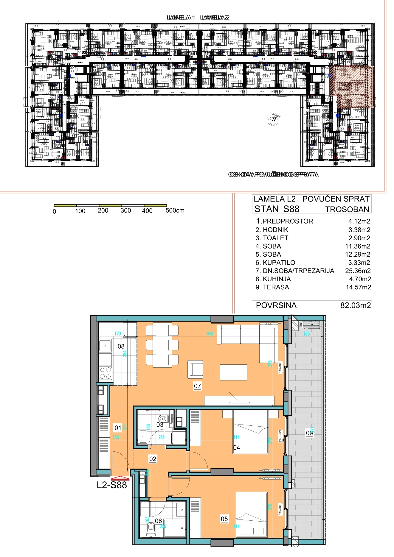
Površina 82,03m2
S88
Površina 110,82m2
s89
Površina 110,5m2
S90